Data publikacji

Tania Działka dla Połczyniaka III. Kolejna odsłona akcji!

Burmistrz Sebastian Witek prezentuje plakat drugiej edycji Akcji

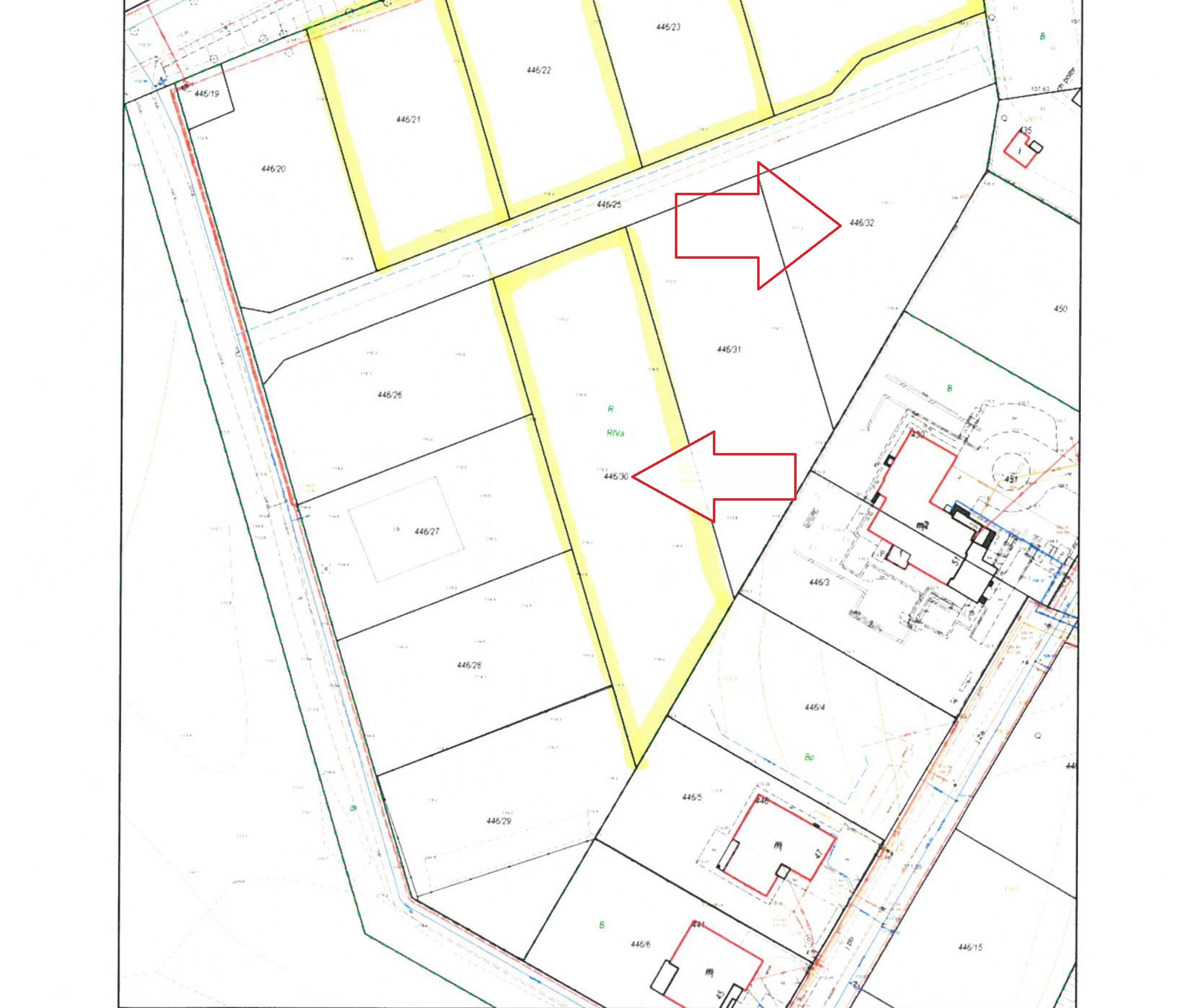
PRZETARG: Bajeczny widok na miasto ze wzniesienia, niczym w hollywoodzkich filmach. Nic dziwnego, że miejsce to niektórzy nazywają „połczyńskim Beverly Hills”. Na sprzedaż jedne z ostatnich działek na osiedlu nowych domków przy ul. Powstańców Warszawskich. Tańsza z nich ma cenę wywoławczą zaledwie 70 tys. zł!
Działka 446/32 o powierzchni 0,1331 ha (70 tys. zł) oraz 446/30 o powierzchni 0,2145 ha (130 tys. zł) sprzedawane będą w drodze przetargu ustnego nieograniczonego (licytacji). W planie zagospodarowania przestrzennego opisane są jako teren zabudowy mieszkaniowej jednorodzinnej. 
To doskonałe okazje dla połczyńskich rodzin, które marzą o zamieszkaniu na swoim, ale nie znalazły dotąd działki, której cena mieściłaby się w granicach rozsądku. Burmistrz Sebastian Witek pierwszą odsłonę Akcji „Tania działka dla Połczyniaka” ogłosił osiemnastego listopada 2021 r. W jej ramach, podobnie jak teraz, można było nabyć działki budowlane po bardzo dobrych cenach. 
Zainteresowani zakupem muszą pamiętać o wadium, które należy wpłacić najpóźniej do 2 lutego 2024 r. (z zaznaczeniem, której nieruchomości dotyczy), zaś sam przetarg odbędzie się 6 lutego br.
Szczegółowych informacji w sprawie przetargu udzielają pracownicy Urzędu Miejskiego Połczynie-Zdroju, Plac Wolności 3-4, pokój nr 206, tel. (0-94) 36-66-126.
Link do przetargu: 
https://umig.polczynzdroj.ibip.pl/public/getFile?id=433047
Zapraszamy do zakupu!
WIĘCEJ INTERESUJĄCYCH OFERT NA STRONIE DLA INWESTORÓW: INVESTinPOLCZYN – Zainwestuj w Połczynie-Zdroju
http://investinpolczyn.pl/

Najczęściej czytane

TURNIEJ TENISA STOŁOWEGO W LOTYNIU
Data publikacji:
  • Sport
W dniu 08.02.2026 roku w Lotyniu (woj. wielkopolskie), został przeprowadzony Turniej Tenisa Stołowego. W wyniku sportowej rywalizacji dzielni zawodnicy z Klub Tenisa Stołowego PERŁA Połczyn-Zdrój zaję…
więcej informacji
Pomnik Sybiraków na cmentarzu komunalnym w Połczynie- Zdroju
Data publikacji:
  • Mieszkańcy
9/10 lutego – obchodziliśmy 86. rocznicę I Masowej Deportacji Polaków na Sybir i do Kazachstanu. W nocy z 9 na 10 lutego 1940 roku rozpoczęła się pierwsza z czterech wielkich deportacji obywateli pols…
więcej informacji
OSTRZEŻENIE METEOROLOGICZNE 10.02.2026 R- 12.02.2026 R.
Data publikacji:
  • Mieszkańcy
OSTRZEŻENIE METEOROLOGICZNE 10.02.2026 R- 12.02.2026 R. MOŻLIWE MARZNĄCE OPADY
więcej informacji