Data publikacji
Mieszkańcy

Prawie 80 metrów w centrum. Kup idealne mieszkanie dla rodziny!

Pokój

PRZETARG  Tylko 130.000 zł - to cena wywoławcza aż 76-metrowego mieszkania do własnej aranżacji w centrum uzdrowiska Połczyn-Zdrój. Przetarg na lokal w świeżo odrestaurowanej kamienicy odbędzie się 27 lipca 2023 r.!
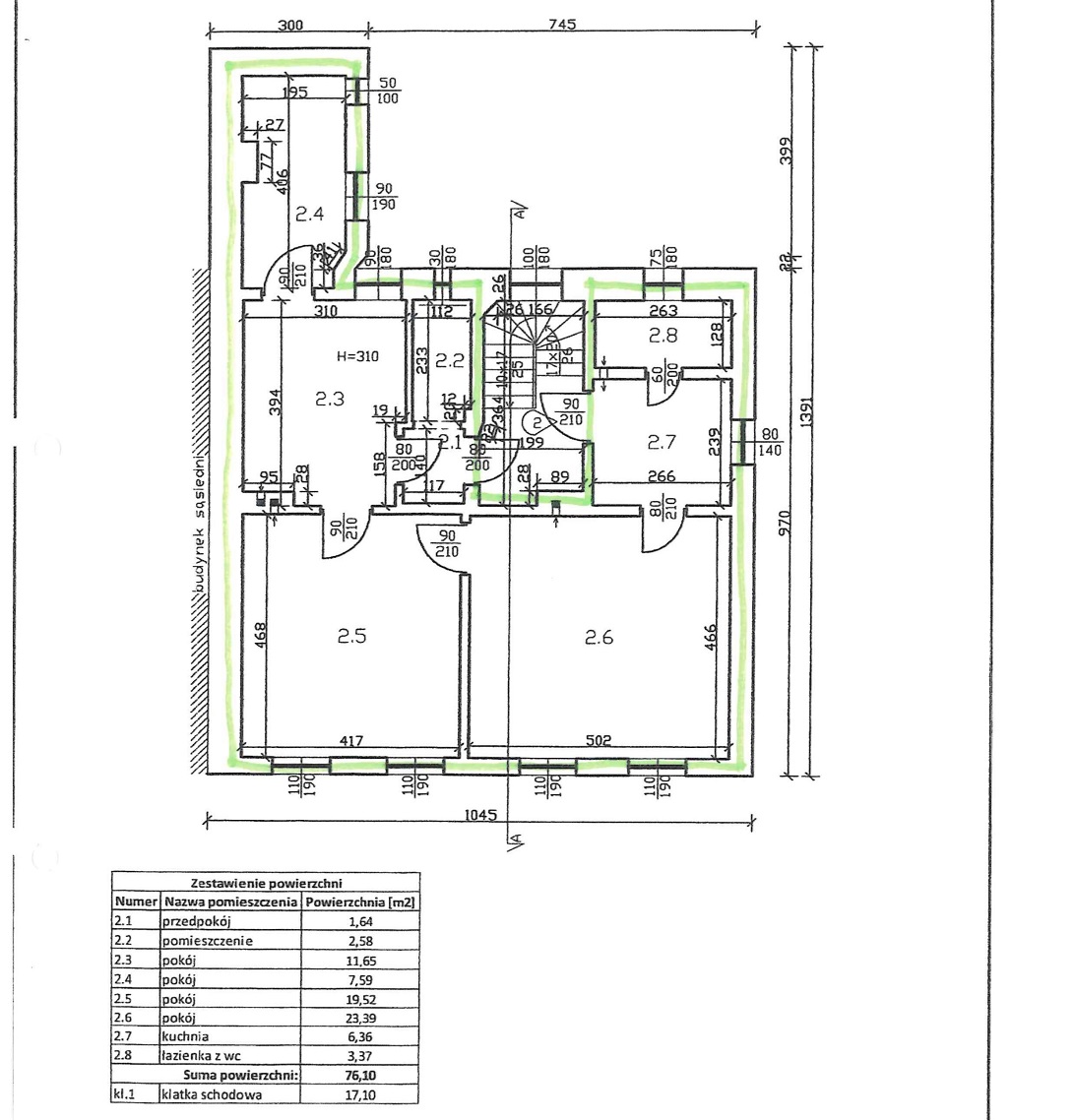
W mieszkaniu o takiej powierzchni można zorganizować praktycznie wszystko: w 4 pokojach zmieści się salon, sypialnia, pokoje dla dzieci i kącik do pracy. Warto pamiętać, że bardzo ciekawe możliwości daje wysokość mieszkania, która wynosi aż 3 metry (dokładnie 290 cm).
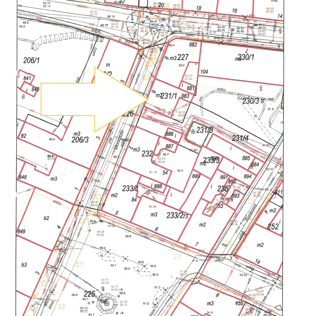
Kamienica przy ul. Moniuszki 6/2 ma swój klimat – w pobliżu przebiega brukowana uliczka, świecą stylowe latarnie. Ze względu na cenę i dużą powierzchnię powinno zainteresować młode rodziny. Sam lokal wymaga remontu, jednak daje też potencjał do zrealizowania wymarzonej, własnej aranżacji. 
Mieszkanie położone jest na I piętrze w dwukondygnacyjnej kamienicy. Składa się z czterech pokoi (ponad 11, 7, 19 i 23 m2), kuchni (6,36 m2), łazienki (3,37 m2), spiżarni (2,58 m2) i przedpokoju (1,64 m2). Większość okien (90%) w pcv.  
Wewnątrz są piece kaflowe, jednak w budynku wykonano pion gazowy, dlatego lokal można łatwo i tanio do niego podłączyć.
Budynek kilka miesięcy temu przeszedł generalny remont. Przeprowadzono wymianę i wzmocnienie elementów więźby dachowej, wymianę pokrycia dachowego wraz z obróbkami blacharskimi i orynnowaniem, docieplenie ścian i elewacji, wymianę stolarki okiennej w częściach wspólnych, wykonano nowe schody wraz z remontem klatki schodowej oraz wymianą instalacji elektrycznej.
Mieszkanie jest widne i przestronne, zaś jego usytuowanie w historycznym centrum miasta daje dostęp do infrastruktury handlowo – usługowej i rozrywkowej. Tylko pięćdziesiąt metrów dzieli go od rynku i Urzędu Miejskiego. Tuż obok przebiega ulica Grunwaldzka - to gwarny deptak z kawiarnią, lodziarnią, piekarnią i różnego rodzaju sklepami. Stad zaledwie kilka minut drogi jest do kina i galerii oraz Parku Zdrojowego.
WADIUM należy wnieść najpóźniej do dnia 24 lipca 2023 r.
Połczyn-Zdrój jest obecnie wielkim placem budowy. Modernizowane są drogi, place, kanalizacja, parkingi, chodniki, obiekty użyteczności publicznej, stadion i basen. Istnieje tu także „Pierwiastek Długowieczności” powodujący, że w gminie żyje najwięcej osób sędziwych, pomiędzy 91 – 100 lat! Dlatego to miasto, w którym warto zamieszkać.
Informacji w sprawie przetargu udzielają pracownicy Urzędu Miejskiego Połczynie-Zdroju, Plac Wolności 3-4, pokój nr 206, tel. (0-94) 36-66-126.
Szczegółowe informacje zawarte są w ogłoszeniach przetargowych, zamieszczonych na tablicy ogłoszeń oraz na stronie internetowej BIP: https://umig.polczynzdroj.ibip.pl/public/getFile?id=424282 

Najczęściej czytane

Plakat
Data publikacji:
  • Mieszkańcy
Informujemy o udostępnieniu Projektu Planu Ogólnego Miasta i Gminy Połczyn-Zdrój na etapie opiniowania i uzgadniania. Opublikowany dokument jest projektem i nie stanowi wersji ostatecznej planu. Proje…
więcej informacji
Plakat
Data publikacji:
  • Mieszkańcy
Ćwiczenia z zakresu ochrony ludności i obrony cywilnej Na podstawie § 7 ust. 2 pkt. 2 Rozporządzenia Ministra Spraw Wewnętrznych i Administracji z dnia 25 lutego 2025 r. w sprawie ćwiczeń z zakresu oc…
więcej informacji
MGOPS w Połczynie- Zdroju
Data publikacji:
  • Mieszkańcy
Program Opieka Wytchnieniowa - edycja 2026 Miejsko-Gminny Ośrodek Pomocy Społecznej w Połczynie-Zdroju Ministerstwo Rodziny, Pracy i Polityki Społecznej
więcej informacji