Data publikacji

Prawie 80 metrów dla rodziny. Nie uwierzycie, za ile!

Kamienica od frontu

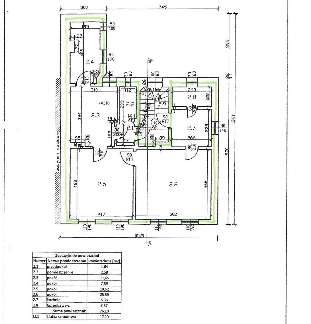
PRZETARG  Tylko 90.000 zł - to cena wywoławcza aż 76,1-metrowego mieszkania do własnej aranżacji w centrum uzdrowiska Połczyn-Zdrój. Przetarg na lokal w świeżo odrestaurowanej kamienicy odbędzie się 6 lutego 2024 r. To świetne mieszkanie, ale też ze względu na lokalizację dobre miejsce na gabinet czy kancelarię.
Mieszkanie przy ul. Moniuszki 6/2 ma swój klimat – w pobliżu przebiega brukowana uliczka, świecą stylowe latarnie. Ze względu na cenę i dużą powierzchnię powinno zainteresować młode rodziny. Wymaga remontu, jednak daje to potencjał do zrealizowania w nim wymarzonej, własnej aranżacji. Wewnątrz są piece kaflowe, jednak w budynku wykonano pion gazowy, dlatego lokal można łatwo i tanio do niego podłączyć.
W mieszkaniu o takiej powierzchni można zorganizować praktycznie wszystko: w 4 pokojach zmieści się salon, sypialnia, pokoje dla dzieci i kącik do pracy. Warto pamiętać, że bardzo ciekawe możliwości daje wysokość mieszkania, która wynosi aż 3 metry (dokładnie 290 cm).
Lokal położony jest na I piętrze w dwukondygnacyjnej kamienicy. Składa się z czterech pokoi (ponad 11, 7, 19 i 23 m2), kuchni (6,36 m2), łazienki (3,37 m2), spiżarni (2,58 m2) i przedpokoju (1,64 m2). Większość okien (90%) w pcv. 
Budynek kilka miesięcy temu przeszedł generalny remont. Przeprowadzono wymianę i wzmocnienie elementów więźby dachowej, wymianę pokrycia dachowego wraz z obróbkami blacharskimi i orynnowaniem, docieplenie ścian i elewacji, wymianę stolarki okiennej w częściach wspólnych, wykonano nowe schody wraz z remontem klatki schodowej oraz wymianą instalacji elektrycznej.
Mieszkanie jest widne i przestronne, zaś jego usytuowanie w historycznym centrum miasta daje dostęp do infrastruktury handlowo – usługowej i rozrywkowej. Tylko pięćdziesiąt metrów dzieli go od rynku i Urzędu Miejskiego. Tuż obok przebiega ulica Grunwaldzka - to gwarny deptak z kawiarnią, lodziarnią, piekarnią i różnego rodzaju sklepami. Stad zaledwie kilka minut drogi jest do kina i galerii oraz Parku Zdrojowego.
WADIUM należy wnieść najpóźniej do dnia 2 lutego 2024 r.
Połczyn-Zdrój jest obecnie wielkim placem budowy. Modernizowane są drogi, place, kanalizacja, parkingi, chodniki, obiekty użyteczności publicznej, stadion i basen. Istnieje tu także „Pierwiastek Długowieczności” powodujący, że w gminie żyje najwięcej osób sędziwych, pomiędzy 91 – 100 lat! Dlatego to miasto, w którym warto zamieszkać.
Informacji w sprawie przetargu udzielają pracownicy Urzędu Miejskiego Połczynie-Zdroju, Plac Wolności 3-4, pokój nr 206, tel. (0-94) 36-66-126.
Szczegółowe informacje zawarte są w ogłoszeniach przetargowych, zamieszczonych na tablicy ogłoszeń oraz na stronie internetowej  https://umig.polczynzdroj.ibip.pl/public/getFile?id=433047

Najczęściej czytane

TURNIEJ TENISA STOŁOWEGO W LOTYNIU
Data publikacji:
  • Sport
W dniu 08.02.2026 roku w Lotyniu (woj. wielkopolskie), został przeprowadzony Turniej Tenisa Stołowego. W wyniku sportowej rywalizacji dzielni zawodnicy z Klub Tenisa Stołowego PERŁA Połczyn-Zdrój zaję…
więcej informacji
Pomnik Sybiraków na cmentarzu komunalnym w Połczynie- Zdroju
Data publikacji:
  • Mieszkańcy
9/10 lutego – obchodziliśmy 86. rocznicę I Masowej Deportacji Polaków na Sybir i do Kazachstanu. W nocy z 9 na 10 lutego 1940 roku rozpoczęła się pierwsza z czterech wielkich deportacji obywateli pols…
więcej informacji
OSTRZEŻENIE METEOROLOGICZNE 10.02.2026 R- 12.02.2026 R.
Data publikacji:
  • Mieszkańcy
OSTRZEŻENIE METEOROLOGICZNE 10.02.2026 R- 12.02.2026 R. MOŻLIWE MARZNĄCE OPADY
więcej informacji